Tuesday, February 14, 2017
Swedish Modern Home | Villa J2 | Jonas Lindvall
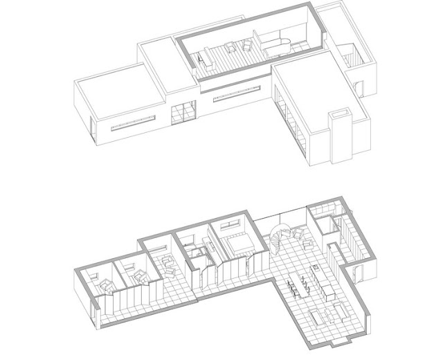
The project began as the revamp of an existing summerhouse dating back to the 1940s. However, due to building regulations stipulating that the footprint remain unchanged, the house was rebuilt entirely. Although the site sits within a residential neighbourhood, privacy was crucial. This was achieved by placing the garage at the street-facing front of the house, with a path leading alongside the garage to the home. Tall shrubbery borders the site, creating a boundary between the neighbouring homes.
A long, narrow hallway runs along the length of the house, leading to the master bedroom suite and the children’s bedrooms. Central to the plan is the integrated kitchen, dining and lounge area, which opens out to a west-facing patio. To the north, a spiral staircase leading up to the library, home office and outdoor terrace creates a sculptural focal point......more
Subscribe to:
Post Comments (Atom)






No comments:
Post a Comment
Note: Only a member of this blog may post a comment.